西脇市和田町 戸建住宅(245)
西脇市和田町 ~小中高徒歩圏内 生活に便利な戸建住宅~
|
売買・賃貸区分 |
売買 |
|---|---|
|
価格 |
200万円 |
|
所在地 |
西脇市和田町 |
|
物件種別 |
戸建住宅 |
|
建築年 |
昭和46年2月 |
|
構造 |
木造2階建 |
|
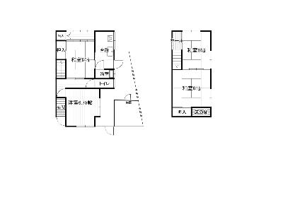
土地面積 |
101平方メートル |
|
家屋床面積 |
74.33平方メートル |
|
交通 |
JR加古川線 西脇市駅から徒歩12分 |
|
仲介業者 |
株式会社 MDホームズ 電話:0794-62-0823 |
|
物件登録番号 |
0245 |
|
備考 |
|










更新日:2026年02月25日